大连理工大学机械工程创新创意大赛暨起重机创意大赛是由教务处、研究生院、机械工程学院、辽宁重大装备制造协同创新中心、机械工程国家级实验教学示范中心共同主办,面向全校在册研究生、本科生等开展的活动。大赛以“启迪创意,推动创新”为指导思想,通过大赛增强大学生的意识;提高大学生针对实际需求进行重大装备的设计和工艺制作的动手能力,扩宽大学生的科学视野。
一、参赛要求及评审方式
1参赛对象:大连理工大学全日制在校本科生、研究生;
2 参赛形式:全校研究生、本科生均可以个人或小组的方式,通过报名参加,每个参赛队学生人数不得多于5人,研究生组队必须包含至少一名本科生,指导教师不多于2人。
3 评审方式:大赛分初赛和决赛。
初赛:参赛队伍须提交作品文档,并在竞赛评审会上进行PPT演示讲解设计方案和现场答辩,评审委员会根据设计的质量及报告、答辩情况为作品打分,评选出优秀作品后予以资助完成后期的作品加工制作。
决赛:提交完整的设计说明书和主要设计图纸; 完成作品的实物样机;介绍作品功能的视频录像(3 分钟之内),经过评审委员会现场打分评选出各奖项。
各参赛队伍务必按照竞赛时间要求进行报名、提交作品及报告、答辩,未在指定时间、地点提交作品或参加答辩的队伍按弃权处理。
二、大赛的内容
设计、制作一台起重机,以遥控的方式将物品从A区域搬运到B区域。具体规则如下:
(1)搬运货物:单件搬运货物由一个保鲜盒内置2瓶平躺的350ml瓶装水构成。保鲜盒如图 1 所示(保鲜盒信息见附件一),其外形尺寸为:上表面(带卡扣宽度)220mm×163mm,底面 192mm×138mm,高为 108mm,上盖表面有提带(比赛时提带凸起,方便摘挂钩,叠放盒子后可压平),提带中部宽度为 14mm(如图 3 所示)。350ml 瓶装水如图 2 所示。每件货物如图 4 所示,其总质量约为 0.94kg(每件货物总质量为所购保鲜盒自重加 2 瓶原装 350ml 瓶装水质量之和,由于产品的批次不同 ,重量可能有一定的误差。比赛时采用原厂原装的 350ml 瓶装水和保鲜盒,不再进行重量调配。

(2)障碍物:选用圆柱形桶作为比赛用障碍物,桶的外形及尺寸如图 5 所示。

图 5 障碍物外形及尺寸示意图
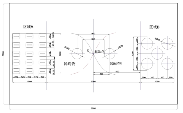
(3)搬运规则:从 A 区域搬运到 B 区域,两者间距为3000mm,货物在搬运过程中必须沿 S 形路线(如图 6 搬运场地区域划分图中粗实线或者虚线所示)绕过两障碍物,货物必须从两障碍物中间通过,且货物顶部离地高度不得超过障碍物高度,若比赛过程中撞倒障碍物或者将障碍物推离原来位置 50mm,比赛结束,搬运场地布置如图 6 所示,起升机构从B 区域到 A 区域没有路线要求。

图 6 搬运场地区域划分图 (图中尺寸单位:mm)
区域A为搬运初始状态,15件0.94kg货物的排列状况,场地面积为1200mm×1000mm;区域 B 为搬运目标场地,场地面积为 1000mm×1000mm。所有搬运的货物必须落在区域 B 的 5 个直径为 φ 340mm(货物上盖对角线长约 273mm)的圆圈内,可叠放,叠放数量不限,所有货物外轮廓不能超出圆圈。
(4)比赛规则
1) 比赛总时间为 4min。
2) 比赛全过程为无线遥控操作,除操作遥控器外,比赛过程中不得用手接触起重机和货物。
3) 作品应为自由独立体,不得采用任何方式与地面粘接和固定。可铺设轨道、磁条或二维码等辅助设施,但所有准备工作必须在 4min 内完成。
4) 比赛起始点为如图 6 所示的两 S 形曲线的交叉点 S,钩头离地 10mm~20mm,且钩头中心对准 S 点。
5) 作品应具有起重机特征,必须具有起升机构。
6) 起重机动力不得采用外接电源。
7) 比赛过程中,进入场地总人数不得超过 2 人。
8) 货物的提带在比赛开始时处于提起状态(本事项由工作人员负责),不得进行打孔、贴标签等改装,搬运过程中货物必须离地,同时不得翻转、抛掷和贴地推移。
(5)计分规则
1)优胜奖分数计算:综合得分=搬运货物数分40%+重量分30% +创新分30%。
2)作品成绩按照综合得分从高到低排序,综合分越高,名次越好。
3)搬运货物数分:按比赛规定时间内每成功从A区搬运1件货物到B区计10 分,比赛结束时按成功搬运货物数累加得分即为搬运货物数分。货物外轮廓超出圆圈的货物不计分。若比赛用时尚未结束已搬完全部 15 件货物,则剩余时间按已用时间搬运货物数折算累加货物数。
4) 质量分:每个作品称重(含遥控器和电源,单位:kg),以 15kg 为极限质量(超出 15kg 计负分),质量分=(15-设备质量)×10。
5)创新分:每个作品评委根据设计理念及其实现情况、构造新颖性等方面进行评分,评分范围为0-100分,去掉评委的最高分和最低分后的平均值即为创新分。
三、大赛日程
1报名时间:2018年3月16日-2018年3月30日17:00。报名参赛的队伍或个人可下载相关附件(见教务处/机械学院网站),请于报名截止前将报名文件(见附件二、附件三)发送至信箱 dutqzds@126.com。
2 比赛时间:初赛2018年4月15日;决赛2018年7月15日。
四、大赛奖励
本次大赛分初赛与决赛。初赛选出优秀作品进入决赛,决赛设一等奖、二等奖、三等奖,组织单位按奖项等级为获奖团队颁发证书。获奖作品将被推荐参加全国大赛。
五、大赛说明
本次大赛相关规则、流程等事宜,由机械工程学院作最终解释,若有疑问请联系曹老师(电话:13942036580;邮箱:xycao@)。